Pombal.
Portugal.
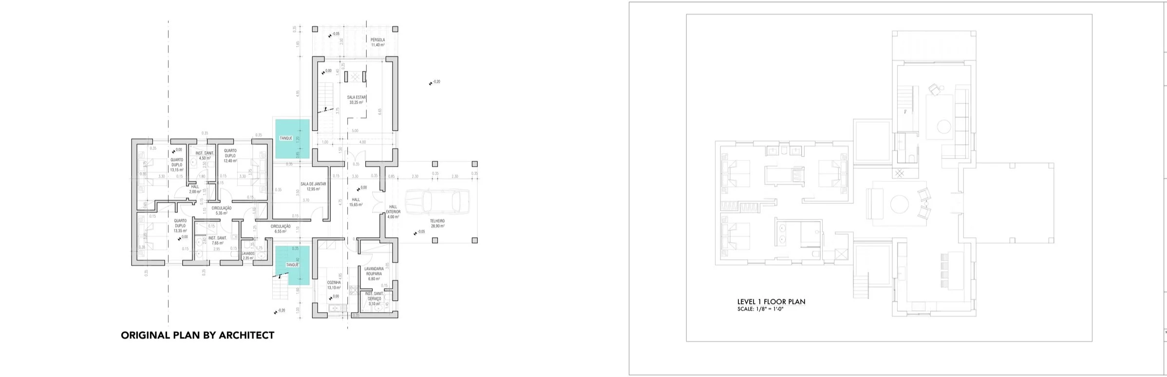
The client wanted to reimagine the plan and overall aesthetic for a family retreat in Pombal, Portugal. Architectural plans were redesigned and overall creative direction was provided for the overseas team to carry out on site.
Client
Private Residential
Year Completed
In Progress
Services
Interior Schematic Plans, Creative Direction, Millwork Design
Reconfigurated Level 1 Floor Plan by Lauren Baker
Reconfigurated Level 2 Floor Plan by Lauren Baker
3D Exterior Rendering by Lauren Baker
3D Exterior Rendering by Lauren Baker
3D Plan Rendering by Lauren Baker
