Project
Amagansett Waterfront
Client
Curious Yellow Design
Year Completed
2022
Schematic Program
AutoCAD
Modeling Program
SketchUp
Rendering Program
V-Ray, Photoshop
Kitchen Rendering by Lauren Baker
Kitchen Rendering by Lauren Baker
Kitchen Rendering by Lauren Baker
Kitchen Lighting Design By Lauren Baker
Kitchen Lighting Design By Lauren Baker
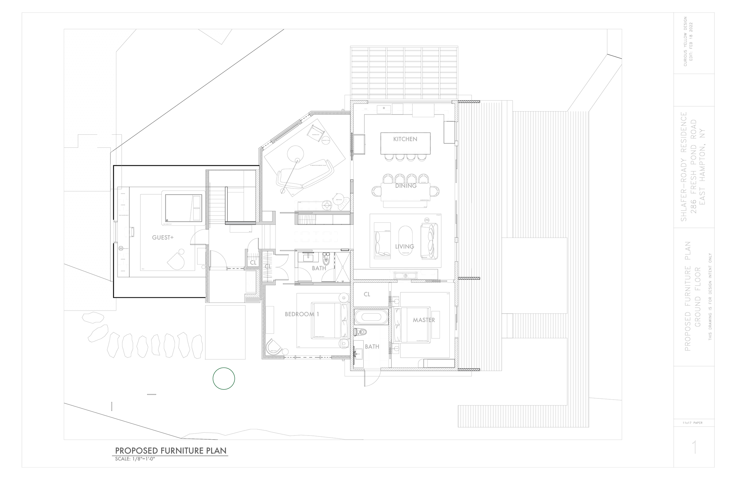
Furniture Plan By Lauren Baker
Furniture Plan By Lauren Baker
Fireplace Design Development by Lauren Baker
Fireplace Design Development by Lauren Baker
Millwork Design By Lauren Baker
Millwork Design By Lauren Baker
Millwork Design By Lauren Baker
Guest Room Design Development by Lauren Baker
Guest Room Design Development by Lauren Baker
